PROJECT GALLERY


Modern bathroom with beige wood-look tile flooring, a white bathtub near a window, a glass-enclosed shower with white marble tiles and a dark accent strip, and a vanity with gray cabinets and white countertop.
Modern kitchen with white cabinets, granite countertops, gas stove, stainless steel dishwasher, black microwave, under-cabinet lighting, and a window above the sink.

RESIDENTIAL REMODEL

DESIGN CONSULTATION

Interior of a hair salon with styling chairs, mirrors, hair products, and equipment, featuring a cowhide rug on light wood flooring, illuminated by overhead fluorescent lights.

BARBER SHOP

DESIGN CONSULTATION

Digital rendering of a small house with a porch, gray exterior walls, a window, a wooden door, and attached ceiling fan, set against a blue sky with clouds.

830 SF ADU PLUS 490 SF COVERED PATIO

DRAFTING & 3D RENDERINGS

Open-concept living room with tiled flooring, brown sofas, a stone fireplace, and a view into the kitchen and outdoor area through sliding glass doors.

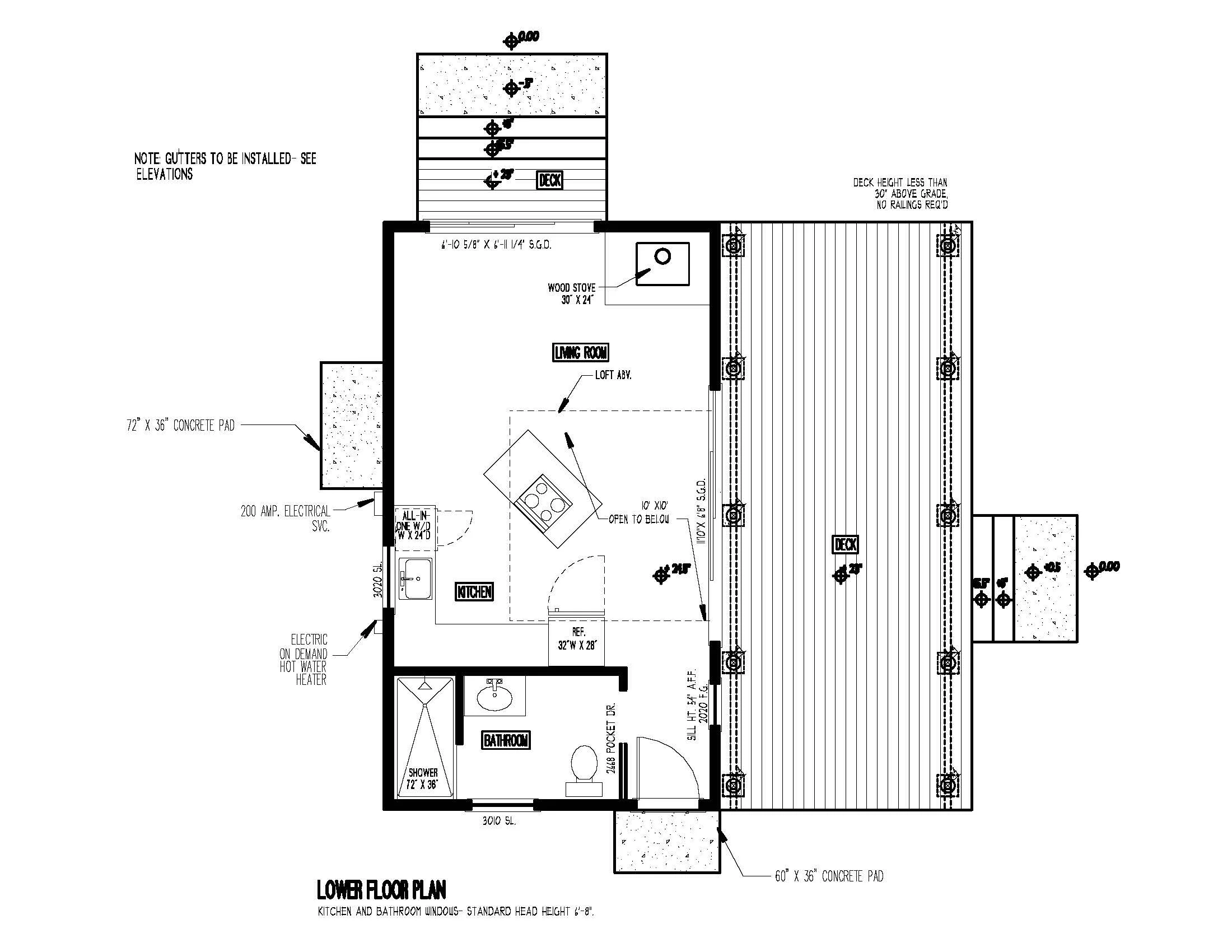
PERMIT PLANS FOR DECK

DRAFTING

460 SF GARAGE CONVERSION- ADU PLUS BATHROOM ADDITION

DRAFTING

A kitchen with white cabinets, black countertops, a stainless steel refrigerator, a stove, a window with blue sky view, and an adjacent laundry area with a stacked washer and dryer. Partial view of a living room with a brown sofa and a small green side table.
Modern kitchen with granite countertops, white cabinets, pendant and recessed lighting, large window, and a small dining area with chairs.
Empty hair salon with mirrors, styling chairs, hair washing station, and large window with view of nearby buildings.

390 SF ADU

DRAFTING

480 SF ADU PLUS 336 SF DECK- TUFF SHED

DRAFTING

Front view of a house with a porch, wooden columns, ceiling fans, a door, and a window against a blue sky.
Front view of a house with a sloped roof, off-white exterior walls, two windows, and a concrete foundation, against a blue sky.
A bedroom with a wooden bed, gray bedding and pillows, two white nightstands, a ceiling fan with wooden blades, an air conditioning unit on the wall, a door, and a window.
Living room with a wall-mounted television showing a zebra, two brown couches, a rustic coffee table, a vintage rug, a teal media console, a window, a door, and a kitchen in the background.

Interested in starting a project? Feel free to contact me for more information.